Pompe submersible puissante avec joints résistants à l'abrasion et protection thermique pour les applications de traitement des eaux usées et industrielles.
Modèle :
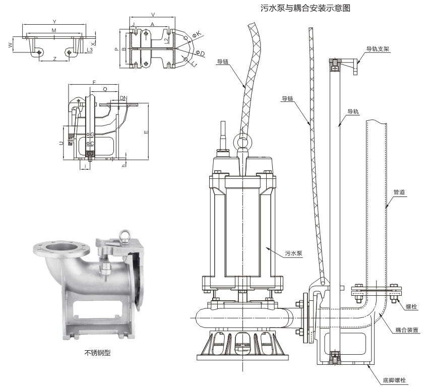
50WQP1.5Calibre importé (DN) :
50Calibre d'exportation (DN) :
50Débit nominal (m³/h) :
15Hauteur manométrique nominale (m) :
14Vitesse du moteur (tr/min) :
2900Puissance du moteur (kW) :
1.5Matériel :
304Prix FOB (USD$) :
700Pompe à eaux usées auto-amorçante
Paramètre technique :
Débit , Q : maximum 1000 m3/h
Tête, H : maximum 65 m
Caractéristiques du produit
1. La chambre à huile est scellée mécaniquement avec une surface à double extrémité en caoutchouc fluoré, et la chambre extérieure adopte une structure de joint d'huile mécanique en caoutchouc fluoré à surface d'extrémité unique, ce qui réduit efficacement le problème d'usure par l'eau causé par le frottement entre les sédiments et l'arbre.
2, le moteur adopte une peinture par immersion sous vide pour obtenir l'isolation de classe F, un dispositif de protection thermique de 4 kW, prolongeant efficacement la durée de vie de la pompe.
3, Selon les exigences particulières des clients, le joint de la machine à tétrafluorine et le moteur résistant aux hautes températures peuvent être personnalisés. (Résoudre la température du liquide de l'environnement de service de 100 ℃)
4, peut être personnalisé pour protéger entièrement la pompe électrique.
Application principale
Il convient aux bâtiments, aux hôpitaux, aux zones résidentielles, à l'ingénierie municipale, à la circulation routière et à la construction, à la galvanoplastie chimique, aux eaux usées d'usine, à l'aquaculture, aux produits pharmaceutiques, aux boissons, à l'eau de mer salée, aux particules solides contenues dans un milieu corrosif général, aux eaux usées à fibres longues, aux eaux usées.
État de service
1. Avec le centre de la roue, la profondeur de 5 m ;
2. La température du fluide de transport n'est pas supérieure à + 40℃ ;
3. Les valeurs de pH du milieu de distribution sont de 304 (4-10) et 316 (2-13) ;
4. Le mouvement et la viscosité du fluide de transport sont de 7x10-23 x 10 m/s ;
5. La densité du milieu de distribution est de 1,2 x 10 kg/m ';
6. Utilisez une tension de 220 V / 380 V, une fréquence de 50 Hz et une fluctuation de tension qui ne doit pas dépasser ± 10 % de la valeur nominale.


